Description
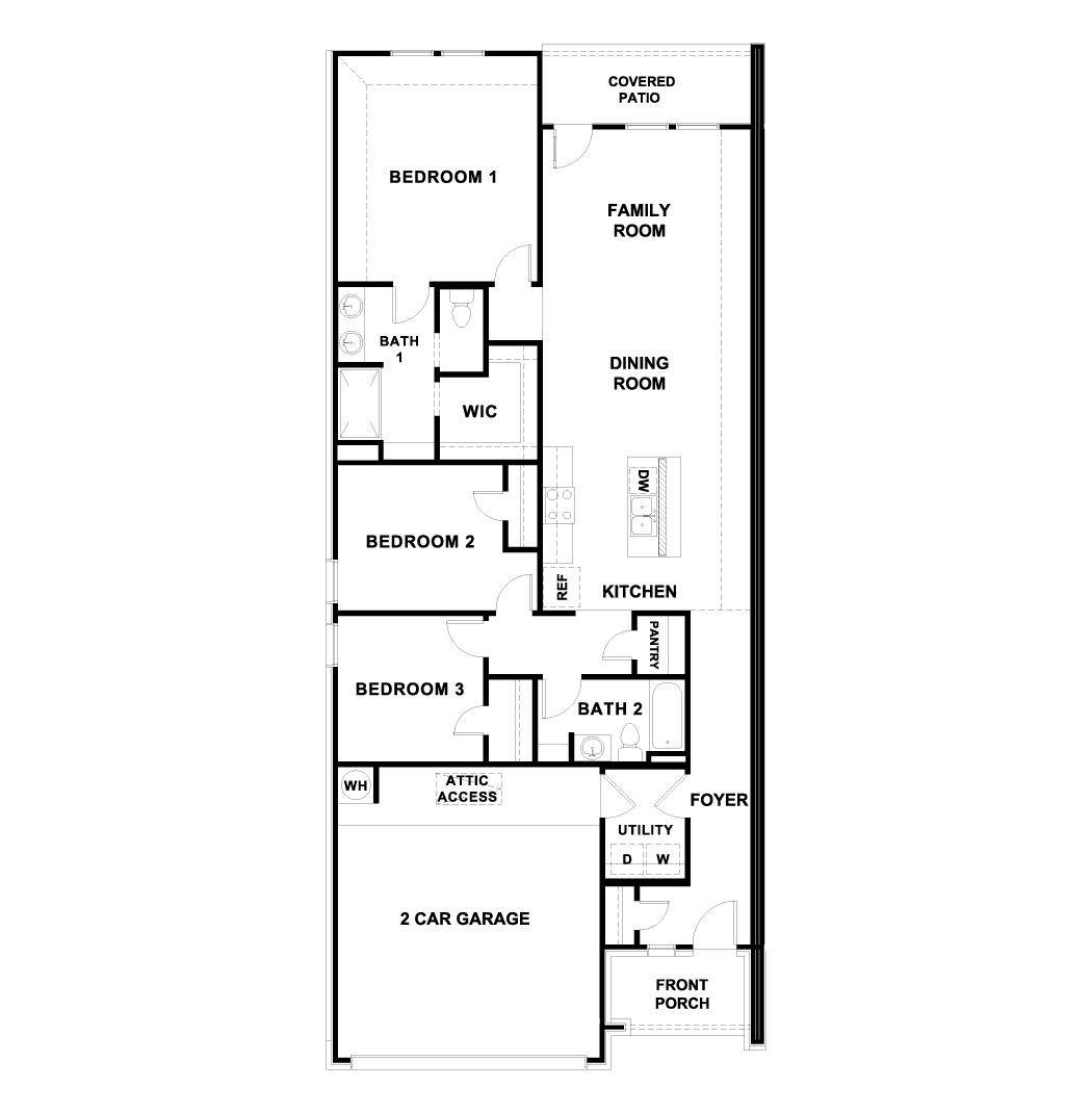
UNDER CONSTRUCTION - EST COMPLETION IN SEPTEMBER Photos are representative of plan and may vary as built. The Juniper floorplan is a 1-story homes across 1,524 square feet, 3 bedrooms, and 2 bathrooms in our Palomino community located in Manor, TX. As you walk through the long foyer, you'll enter the open concept kitchen and living where plenty of memories are soon to be made. The kitchen with features including stainless steel appliances, a large walk-in pantry, and granite countertops. The large kitchen island includes a built in undermount sink and dishwasher. Two bedrooms and a full bathroom with a tub are located off the kitchen. Making your way towards the back of the home, you'll find the back patio door and the private main bedroom. The adjoined main bathroom includes double vanity sinks, a walk-in shower, a separate toilet room, and a walk-in closet. This home comes included with a professionally designed landscape package and a full irrigation system as well as our Home is Connected base package that offers devices such as a Video Doorbell, Deako Smart Light Switch, a Honeywell Thermostat, and more.
-
3BEDS
-
0.11ACRES
-
2BATHS
-
01/2 BATHS
-
1,524SQFT
-
$190$/SQFT
School Information
Description
UNDER CONSTRUCTION - EST COMPLETION IN SEPTEMBER Photos are representative of plan and may vary as built. The Juniper floorplan is a 1-story homes across 1,524 square feet, 3 bedrooms, and 2 bathrooms in our Palomino community located in Manor, TX. As you walk through the long foyer, you'll enter the open concept kitchen and living where plenty of memories are soon to be made. The kitchen with features including stainless steel appliances, a large walk-in pantry, and granite countertops. The large kitchen island includes a built in undermount sink and dishwasher. Two bedrooms and a full bathroom with a tub are located off the kitchen. Making your way towards the back of the home, you'll find the back patio door and the private main bedroom. The adjoined main bathroom includes double vanity sinks, a walk-in shower, a separate toilet room, and a walk-in closet. This home comes included with a professionally designed landscape package and a full irrigation system as well as our Home is Connected base package that offers devices such as a Video Doorbell, Deako Smart Light Switch, a Honeywell Thermostat, and more.
Related Properties
© 2025 Austin Board of REALTORS® (alternatively, from ACTRIS). All information provided is deemed reliable but is not guaranteed and should be independently verified. The Austin Board of REALTORS®, ACTRIS and their affiliates provide the MLS and all content therein “AS IS” and without any warranty, express or implied.The information provided is for consumers' personal, non-commercial use and may not be used for any purpose other than to identify prospective properties consumers may be interested in purchasing. Data last updated: 2025-11-18T13:02:50.87.
Based on information submitted to the MLS GRID as of 2025-11-18T13:02:50.87 (date and time MLS GRID Data was obtained).
All data is obtained from various sources and may not have been verified by broker or MLS GRID. Supplied
Open House Information is subject to change without notice. All information should be independently reviewed and verified for accuracy. Properties may or may not be listed by the office/agent presenting the information.
Click here for MLS GRID DMCA Notice