Description
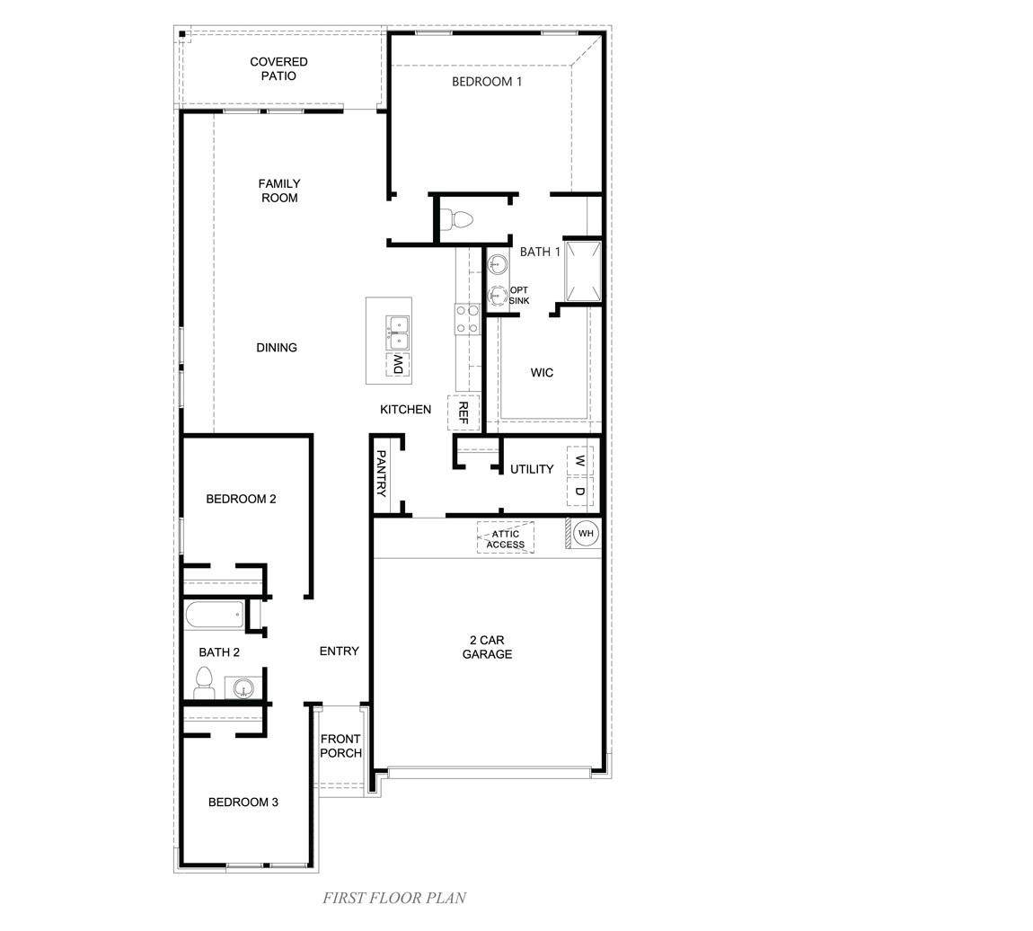
Talk to us about the Caden, a floorplan at our Yowell Ranch community in Killeen, Texas. With 3 bedrooms, 2 bathrooms, and approximate 1,595 sq. ft., this single-story home is designed to fit your needs. The 2-car garage gives you space for storage or your vehicles. When you first walk into the home, the entryway leads to two secondary bedrooms and the secondary bathroom. Continuing down the hall is the open concept living space starting with the kitchen and dining room. Modern design and function are key features, and the kitchen provides shaker-style cabinets and granite countertops. The kitchen island includes a built-in sink, and stainless-steel appliances are throughout. Find the large pantry and laundry room next to the kitchen, with inside access to the garage. From the kitchen and dining area, you can continue to the large living space with easy access to the covered patio. The primary bedroom has an attached bathroom, with a spacious walk-in closet. Find yourself at home in the Caden floorplan!
-
3BEDS
-
0.12ACRES
-
2BATHS
-
01/2 BATHS
-
1,595SQFT
-
$168$/SQFT
School Information
Description
Talk to us about the Caden, a floorplan at our Yowell Ranch community in Killeen, Texas. With 3 bedrooms, 2 bathrooms, and approximate 1,595 sq. ft., this single-story home is designed to fit your needs. The 2-car garage gives you space for storage or your vehicles. When you first walk into the home, the entryway leads to two secondary bedrooms and the secondary bathroom. Continuing down the hall is the open concept living space starting with the kitchen and dining room. Modern design and function are key features, and the kitchen provides shaker-style cabinets and granite countertops. The kitchen island includes a built-in sink, and stainless-steel appliances are throughout. Find the large pantry and laundry room next to the kitchen, with inside access to the garage. From the kitchen and dining area, you can continue to the large living space with easy access to the covered patio. The primary bedroom has an attached bathroom, with a spacious walk-in closet. Find yourself at home in the Caden floorplan!
Related Properties
© 2025 Austin Board of REALTORS® (alternatively, from ACTRIS). All information provided is deemed reliable but is not guaranteed and should be independently verified. The Austin Board of REALTORS®, ACTRIS and their affiliates provide the MLS and all content therein “AS IS” and without any warranty, express or implied.The information provided is for consumers' personal, non-commercial use and may not be used for any purpose other than to identify prospective properties consumers may be interested in purchasing. Data last updated: 2025-12-11T00:00:10.923.
Based on information submitted to the MLS GRID as of 2025-12-11T00:00:10.923 (date and time MLS GRID Data was obtained).
All data is obtained from various sources and may not have been verified by broker or MLS GRID. Supplied
Open House Information is subject to change without notice. All information should be independently reviewed and verified for accuracy. Properties may or may not be listed by the office/agent presenting the information.
Click here for MLS GRID DMCA Notice